Jonathan Pages
2290 Aaron St #312, Port Charlotte, Florida
- MLS #: C7506484
- Price: $129,000
- Beds: 2
- Baths: 2
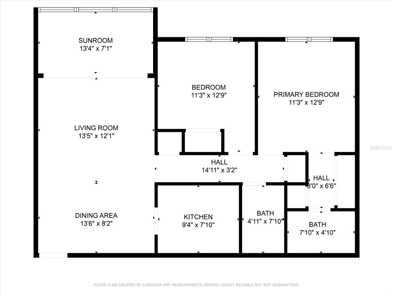
- Square Feet: 919
- City: PORT CHARLOTTE
- Zip Code: 33952
- Subdivision: CHELSEA HOUSE
- Garage: 1
- Year Built: 1975
- HOA Fee: $450
- Payments Due: Monthly
- Status: Active
- DOM: 276 days
- Lot Size: 0 to less than 1/4
Listing Tools
Jonathan Pages
941.806.9955Share Listing
Property Description
Welcome to your perfect TURNKEY retreat in the highly desirable 55+ Charlotte Square Condominium community! This beautifully maintained 2-bedroom, 2-bathroom condo is located on the 3rd floor with convenient ELEVATOR ACCESS, offering ease and comfort in a fantastic location. Even better -- this condo is in a NON-FLOOD ZONE and comes with PUBLIC WATER AND PUBLIC SEWER, giving you peace of mind and practicality. Move-in ready and designed for effortless living, this charming condo boasts updated LUXURY VINYL FLOORING throughout, providing a modern and stylish touch. The unit is being sold FULLY FURNISHED with furniture that's only two years old -- just pack your suitcase and bring your toothbrush! The well-appointed kitchen features NEWER APPLIANCES, including a microwave, refrigerator, and oven, making meal prep a breeze. The open floor plan with a combined dining and kitchen area creates a spacious and inviting atmosphere, perfect for entertaining family and friends. Step into the expansive Lanai/Florida room and take in the beautiful views overlooking the community's lush courtyard and wonderful amenities. This serene space is perfect for morning coffee, afternoon reading, or simply unwinding while enjoying the Florida sunshine. The spacious primary bedroom offers a private retreat with an en-suite bathroom featuring an updated vanity and a tub-and-shower combination. The generously sized guest bedroom and additional full bathroom provide comfortable accommodations for visitors. Practicality meets convenience with an assigned carport parking spot (currently in the process of being reinstalled) and a 4x5 storage cage, perfect for stowing your beach gear, pool essentials, or golf clubs. Charlotte Square's impressive list of amenities ensures you'll always have something to enjoy! Take advantage of two heated pools, tennis and pickleball courts, shuffleboard, a billiards room, a grilling aarea, and year-round activities hosted in the clubhouse. This vibrant community offers the perfect balance of relaxation and social connection. Location is everything -- and this condo delivers! Situated in the heart of Port Charlotte, you're just minutes from grocery stores, shopping, gas stations, and two local hospitals. Plus, with easy access to Tamiami Trail (US-41), you're a short drive from beautiful Gulf Coast beaches and everything the area has to offer. Don't miss this RARE OPPORTUNITY to own a move-in ready, fully furnished condo in one of Port Charlotte's most sought-after 55+ communities! Schedule your private showing today and start living your best Florida life!
Listing Information Request
-
Miscellaneous Info
- Subdivision: Chelsea House
- Annual Taxes: $1,073
- HOA Fee: $450
- HOA Payments Due: Monthly
- Age Restrictions: 1
- Lot Size: 0 to less than 1/4
-
Schools
- Elementary: Peace River Elementary
- High School: Charlotte High
-
Home Features
- Appliances: Dishwasher, Electric Water Heater, Exhaust Fan, Microwave, Range, Refrigerator
- Flooring: Luxury Vinyl
- Air Conditioning: Central Air
- Exterior: Courtyard, Lighting, Rain Gutters, Sidewalk, Sliding Doors, Storage, Tennis Court(s)
- Garage Features: Assigned, Covered, Guest
Listing data source: MFRMLS - IDX information is provided exclusively for consumers’ personal, non-commercial use, that it may not be used for any purpose other than to identify prospective properties consumers may be interested in purchasing, and that the data is deemed reliable but is not guaranteed accurate by the MLS.
Thanks to RE/MAX PALM REALTY for this listing.
Last Updated: 12-14-2025











































