Jonathan Pages
6465 Carrington Cir #44, Sarasota, Florida
- MLS #: A4666966
- Price: $370,000
- Beds: 3
- Baths: 2
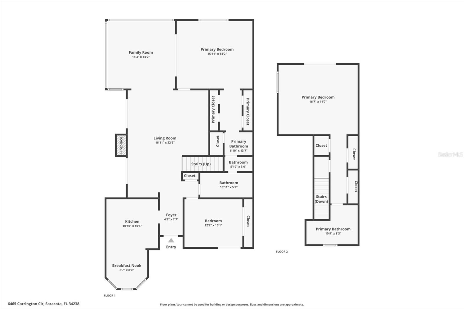
- Square Feet: 2037
- City: SARASOTA
- Zip Code: 34238
- Subdivision: WESTWOODS AT SUNRISE
- Garage: 2
- Year Built: 1985
- Status: Active
- DOM: 65 days
- Lot Size: Non-Applicable
Listing Tools
Jonathan Pages
941.806.9955Share Listing
Property Description
Welcome to 6465 Carrington Circle in Sarasota, a spacious villa in the sought-after 55+ community of Westwoods at Sunrise. Offering over 2,000 square feet, this home features three bedrooms and two bathrooms, highlighted by two primary suites--one upstairs with a private balcony for enjoying morning coffee or evening sunsets, and one downstairs for convenient single-level living--making it ideal for hosting guests or accommodating multi-generational needs. The flexible floor plan includes an enclosed lanai that can serve as a cozy TV room, office, or formal dining space, plus an eat-in kitchen, a bright living room with volume ceilings, and sliding glass doors that fill the home with natural light and open to a private patio. A screened lanai connects the residence to an oversized two-car garage, while mature plantings enhance the curb appeal and outdoor charm. Exceptional storage is found throughout with numerous closets, and the property has been well maintained with a new roof in 2019 and new AC in 2018. Offered partially furnished, the home is part of a community known for its charm, tree-lined streets, and amenities including two heated pools, pickleball, and a pet-friendly policy for one pet up to 25 pounds--all with no CDD fees. Conveniently located near I-75, shopping, restaurants, Detwilers, and just a short drive to Siesta Key, this villa offers comfort, versatility, and a fantastic Sarasota lifestyle--whether for year-round living or as a second home.
Listing Information Request
-
Miscellaneous Info
- Subdivision: Westwoods At Sunrise
- Annual Taxes: $4,032
- Age Restrictions: 1
- Lot Size: Non-Applicable
-
Schools
- Elementary: Ashton Elementary
- High School: Riverview High
-
Home Features
- Appliances: Dishwasher, Disposal, Dryer, Electric Water Heater, Microwave, Range, Refrigerator, Washer
- Flooring: Carpet, Ceramic Tile
- Fireplace: Wood Burning
- Air Conditioning: Central Air
- Exterior: Balcony, Courtyard
- Garage Features: Garage Door Opener
Listing data source: MFRMLS - IDX information is provided exclusively for consumers’ personal, non-commercial use, that it may not be used for any purpose other than to identify prospective properties consumers may be interested in purchasing, and that the data is deemed reliable but is not guaranteed accurate by the MLS.
Thanks to BERKSHIRE HATHAWAY HOMESERVICE for this listing.
Last Updated: 12-06-2025
































































