Jonathan Pages
8838 Bloomfield Blvd, Sarasota, Florida
- MLS #: A4650233
- Price: $1,150,000
- Beds: 4
- Baths: 3
- Half Baths: 1
- Square Feet: 3218
- City: SARASOTA
- Zip Code: 34238
- Subdivision: SILVER OAK
- Garage: 3
- Year Built: 2000
- HOA Fee: $3,619
- Payments Due: Annually
- Status: Sold
- Sold Date: Oct 20, 2025
- Lot Size: 1/4 to less than 1/2
Listing Tools
Jonathan Pages
941.806.9955Share Listing
Property Description
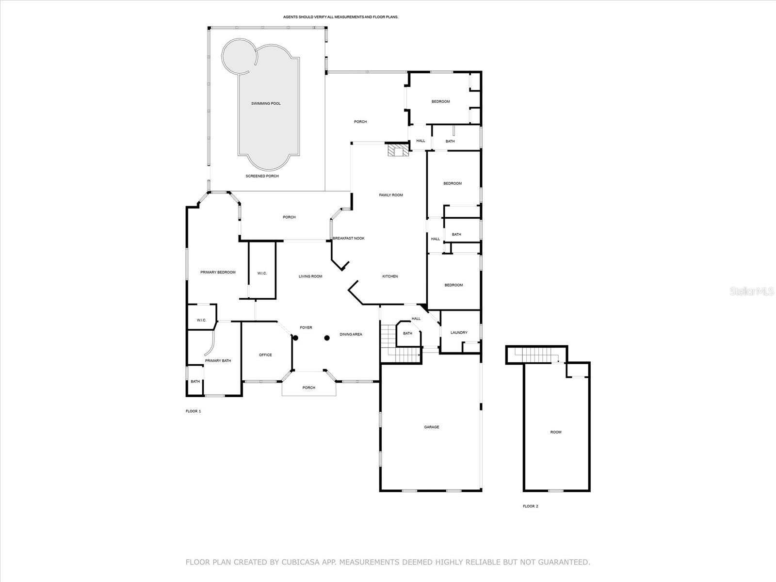
Welcome to the Estates of Silver Oak, one of Palmer Ranch's finest addresses! With tons of new upgrades and updates this fine custom home is now available for new ownership. Loaded with curb appeal, you'll notice the majestic circular drive and stacked stone front elevation as well as impeccable landscaping that lead you to the double front door entry. Upon entering this four bedroom, three and a half bathroom, plus office home you will immediately be drawn to the pool views and lushly landscaped backyard giving way to a large preserve area in the distance. Recent major upgrades include brand new flat tile roof, all new impact sliding glass doors, engineered hardwood floors in main living area, both HVACs in 2023, and 2025 water heater. This floor plan offers ultimate flexibility and includes a separate living, dining, and family room area as well as open kitchen with pool views. Upgrades include gas fireplace, crown molding, tray ceiling, built-in niches, and huge 2nd story room for almost any purpose. The kitchen features an island, breakfast bar, stainless steel appliances and 5 burner gas range. The primary suite is oversized with room for a sitting area, has dual closets, spa-like bathroom with dual vanities, soaking tub, and walk-in shower. The outdoor living space is incredible and features a pavered deck, beautiful, heated pool and spa, multiple covered dining areas and great landscaping for privacy and serenity. There's a side-loading 3 car garage that rounds out this amazing home which is set on an oversized lot. Silver Oak is 24-hour guard gated and features no CDD fees. Centrally located to beaches, shopping, the Legacy Trail and much more, you will love this amazing home. Schedule your private showing today!
Listing Information Request
-
Miscellaneous Info
- Subdivision: Silver Oak
- Annual Taxes: $10,611
- HOA Fee: $3,619
- HOA Payments Due: Annually
- Lot Size: 1/4 to less than 1/2
-
Schools
- Elementary: Laurel Nokomis Elementary
- High School: Venice Senior High
-
Home Features
- Appliances: Dishwasher, Disposal, Dryer, Microwave, Range, Refrigerator, Washer
- Flooring: Carpet, Hardwood, Tile
- Fireplace: Gas
- Air Conditioning: Central Air
- Exterior: Lighting, Private Mailbox, Sliding Doors, Storage
- Garage Features: Circular Driveway, Garage Door Opener
Listing data source: MFRMLS - IDX information is provided exclusively for consumers’ personal, non-commercial use, that it may not be used for any purpose other than to identify prospective properties consumers may be interested in purchasing, and that the data is deemed reliable but is not guaranteed accurate by the MLS.
Thanks to MICHAEL SAUNDERS & COMPANY for this listing.
Last Updated: 12-14-2025

































